COMMERCIAL I

A Nautical Themed Restaurant Located in Antwerp, Belgium

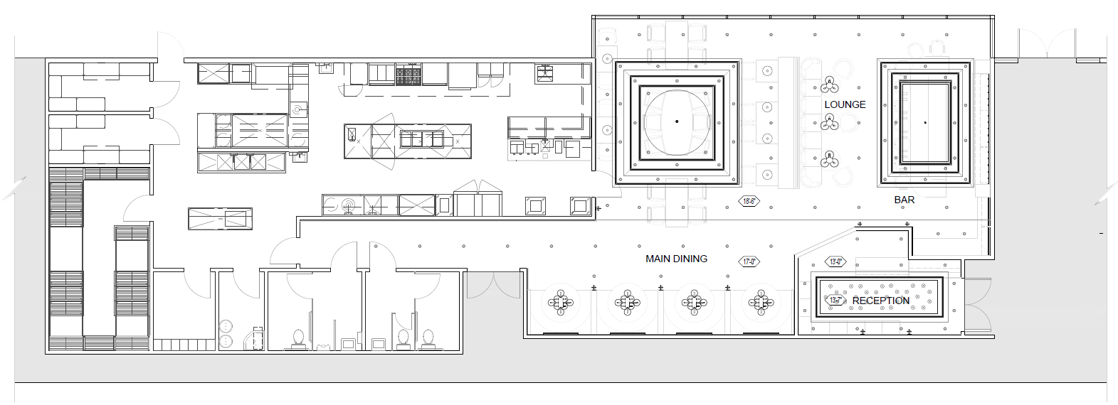
Haven Huis (Harbor House) is a refined Belgian restaurant nestled within a private harbor along the Scheldt River in Antwerp, offering guests an elevated culinary experience in an upscale nautical setting. Inspired by the maritime heritage of the city, the restaurant combines sleek, modern design elements with the warmth and tradition of the sea. Rich, dark woods, brass accents, and floor-to-ceiling windows provide expansive views of the harbor, evoking the elegance of a luxury yacht. Our menu is rooted in the finest Belgian traditions, featuring locally sourced seafood and classic dishes with contemporary twists, paired with an exceptional selection of Belgian beers and wines.

RENDERINGS


REFLECTED CEILING PLAN